Skip to main content

Collège (gymnase) pour 1350 élèves 

2019

Sion

Rien ne façonne plus le territoire que la topographie et les voies de communication. Dans ce contexte il est intéressant de constater que l’élément le plus structurant du lieu est invisible, puisqu’il s’agit de la tranchée couverte de l’A9, générant une bande inconstructible de 58 mètres de large en surface. Il y a bien là le Cours Roger-Bonvin et le canal de Vissigen, mais tous deux souffrent d’une carence en « imagibilité », le premier étant limité à de modestes  aménagements en mobilier urbain car fortement contraint par les exigences de la Confédération, le second étant peu visible car faiblement arborisé. la Ferme-Asile s’inscrit dans la géométrie du canal de Vissigen, et la chapelle du même nom se rattache à celle du Cours Roger-Bonvin, qui sont peu de choses pour insuffler une identité forte au site, pincé entre la zone industrielle de Chandoline au Sud et le quartier d’immeubles locatifs de Vissigen au Nord.

Le projet se présente sous la forme d’un bâtiment en longueur qui accompagne le Cours Roger-Bonvin pour enrichir l’usage du lieu entre la gare et le pôle santé. En occupant le site de cette manière, l’implantation du collège établit un dialogue tripartite avec la Ferme-Asile et la chapelle, tout en préservant du potentiel constructible pour un éventuel développement du site entre le collège et le canal de Vissigen renaturé, mis en valeur par une nouvelle arborisation autour d’une noue.

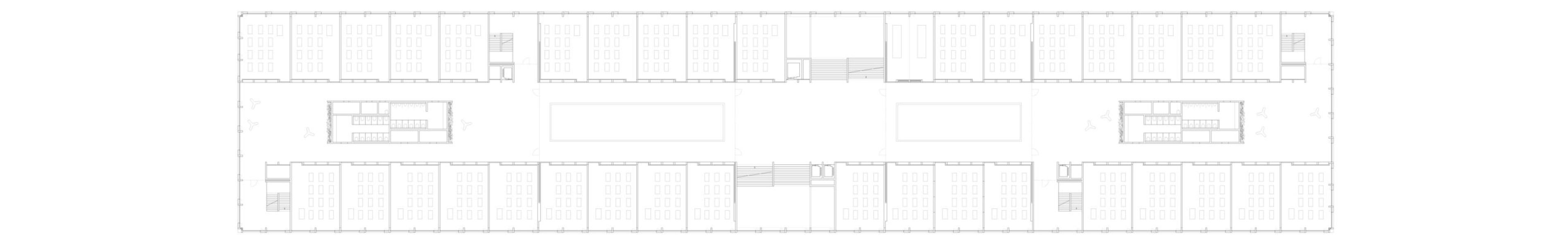
Avec une longueur de 166 mètres, soit un peu moins du quart de la tranchée couverte de l’A9, le projet cherche à maximiser la transparence et la perméabilité du rez-de-chaussée par une stratification du programme allant des espaces les plus « publics », donc les plus grands (réfectoire, aula, salles de gymnastique), à ceux qui le sont moins, le degré de « privacité » augmentant avec les étages. Cette organisation du programme permet au rez-de-chaussée de fonctionner de manière autonome hors des horaires scolaires avec un système d’entrées indépendantes pour les salles de gymnastique, ainsi que de l’aula et du réfectoire.

Ainsi, le secrétariat, la salle des maîtres et la conciergerie prennent place au premier étage, en comblant les interstices inoccupés par les espaces à double, voire à triple hauteur cités ci-dessus. Grâce au positionnement en quinquonce des « blocs opaques » (vestiaires, cuisine, scène de l’aula et locaux de ventilation des salles de sport), les relations inter-espaces sont multiples, garantes d’une grande richesse spatiale.

Un-e étudiant-e passe plus de 70% de son horaire dans sa salle de classe dite normale, 20% dans les classes spéciales, le solde étant dévolu aux activités sportives. Avec 36 classes par niveau, 2 étages sont nécessaires pour accueillir les classes normales. Les salles de classe auxquelles les élèves s’identifient se trouvent aux étages supérieurs du bâtiment car elles correspondent au degré de « privacité » le plus élevé. La présence des casiers personnels à ces mêmes niveaux permettent de « distiller » le flux des élèves dans l’école. Le deuxième niveau constitue l’étage « laboratoire » des étudiants et des professeurs. Il est constitué d’espaces spécifiques: les salles de sciences, de dessin, d’informatique, d’examens et d’étude, ainsi que la salle -fastlab- et le centre de documentation. Il est l’interface où le corps professoral « monte » et où les élèves « descendent ». Ce niveau joue également un rôle de « diluant », ou régulateur du flux des utilisateurs dans le bâtiment.

La zone de risque sismique est 3b, soit la catégorie de danger le plus élevée de Suisse. Un soin tout particulier est voué au dispositif parasismique, notamment grâce aux verticalités ininterrompues allant de la dalle de toiture jusqu’aux fondations, en veillant à éviter aux maximum les excentricités des noyaux de contreventement par rapport à la géométrie générale du bâtiment.

Avec un système structurel répétitif, l’ossature du projet est un habile mélange d’éléments préfabriqués en béton (colonnes et poutres) et solidarisés aux éléments de stabilité générale lors du bétonnage des éléments coulés en place comme les trémies, les escaliers principaux et les tables de compression des dalles.

Pour franchir les portées des salles de gymnastique, du réfectoire et de l’aula, les étages supérieurs sont mis à contribution en exploitant leur hauteur statique par le biais de poutres Vierendeel. Ce système à l’avantage de procurer une grande transparence aux 1er et 2ème étages et d’intégrer dans leurs interstices les casiers des étudiant-e-s aux 3ème et 4ème étages.

Avec une trame structurelle de 3.75 mètres pour les façades et une demi-trame pour les poutres Vierendeel, le système garantit une grande flexibilité d’aménagement et de cloisonnement des espaces. Avec un système identique, mais un positionnement différent des éléments de remplissage comme les casiers affleurés côté couloir(s) et les éléments de fermeture vitrés en retrait de l’étage « laboratoire », les espaces de circulation ont des expressions qui suggèrent des usages différents à ceux des salles dites normales.

La taille du bâtiment et son nombre d’occupants nécessite un développement poussé du dimensionnement des voies de fuite, ainsi que de leur compartimentage. Un collège est un lieu de vie et il est important que les espaces de circulation tissent des relations avec l’extérieur mais également entre étages.

Pour atteindre ce but, le cœur du système est baigné de lumière zénithale via deux atriums, considérés comme des « cours intérieures couvertes de type B » au sens des normes AEAI. En cas d’alarme feu, celles-ci sont isolées du système au moyen de portes coupe-feu et désenfumées de manière naturelle, permettant de diriger la fuite des occupants vers la double cage d’escaliers centrale ou vers les quatre cages d’escaliers secondaires. Ce système permet de ne pas avoir à vitrer les cours et permet d’économiser un coûteux système de sprinklers.

En raison de l’important programme du complexe scolaire, une partie des locaux est imaginée semi-enterrée dans le but de limiter la volumétrie visible du bâtiment ainsi que de préserver la transparence du rez-de-chaussée. De cette manière, les locaux pour les engins sont au même niveau que les salles de sport dont les parois sont opaques sur les 3 premiers mètres, qui sont un plus indéniable pour pratiquer des activités sportives dans de bonnes conditions, sans contre-jours.

De ce fait, le projet est considéré en dérogation uniquement pour les salles de gymnastique, les vestiaires se trouvant hors sol. Le mouvement des terres est optimisé en utilisant le volume d’excavation des salles de sport et des locaux techniques pour les remblais et la planie autour du bâtiment.

Les quatre salles de gymnastique sont proposées deux fois sous la forme de salles doubles, séparables au besoin par un système de rideaux opaques dans leur partie inférieure et sous la forme d’un filet dans leur partie supérieure pour préserver la transparence au-dessus du sol.

La nécessité de disposer de 1.20 m pour pouvoir ranger les rideaux font de l’épaisseur disponible sous la dalle du deuxième étage la nappe principale de distribution technique pour tout le bâtiment. Les locaux de ventilation sont placés aux endroits stratégiques, à côté des salles de sport, à proximité de la cuisine et du réfectoire. Ce réseau principal de distribution a également l’avantage de se trouver sous l’étage des salles spéciales qui nécessitent un débit d’air plus important que les salles normales (chapelles de ventilation des salles de sciences et dessin), salles d’étude, centre de documentation et -fastlab- avec un grand nombre d’occupants.

Pour garantir la pérennité des façades, celles-ci sont imaginées ventilées avec un revêtement en aluminium. Les stores également métalliques offrent une meilleure durabilité, résistance au Foehn qu’un store en toile ainsi que la possibilité de contrôler la quantité de lumière nécessaire aux cours. Chaque classe est pourvue d’au minimum deux vitrages ouvrants, qui permettent aux occupants d’agir pour contrôler le climat intérieur. Devant chaque vitrage ouvrant se trouve une grille perforée pour remplir la fonction d’élément pare-pluie, anti-effraction et anti-chute.

Les atriums ont pour avantage de baigner les espaces centraux de lumière naturelle et sont également mis à contribution pour le rafraîchissement et la ventilation naturelle du bâtiment en tirant profit de leur hauteur pour bénéficier de l’effet « cheminée », pour mettre l’air en mouvement (ventilation diurne / nocturne).

Les aménagements extérieurs sont pensés de manière à limiter les surfaces minérales et maximiser les surfaces vertes. Cette stratégie opère par « couches », allant de la géométrie la plus « linéaire » au-dessus de l’A9, à celle plus « libre » du canal de Vissigen revitalisé. Dans le but de pérenniser les aménagements du Cours Roger-Bonvin, une proportion importante de l’espace « inutilisé » est restituée à la nature sous la forme de « tranchées vertes », dans le but de favoriser le développement de la biodiversité (3’800 m2).

L’espace de -respiration- demandé dans le programme pour conserver des relations harmonieuses entre bâtiments voisins est traitée sous la forme d’une bande de prairie fleurie non-arborisée entre le collège et la Ferme-Asile. Elle représente une réserve de potentiel constructible d’environ 3’200 maux deux extrémités du collège, côté Rue de la Dixence et de la Rue du Parc. Les revêtements piétonniers permettent l’infiltration des eaux de pluie tout en étant suffisamment résistants pour permettre la venue de véhicules de livraisons ou d’intervention.